Verwendung von Cookies Wir verwenden Cookies zur Unterstützung der Benutzerfreundlichkeit und um Inhalte sowie Anzeigen zu personalisieren. Mit dem Browsing dieser Seite erklären Sie sich damit einverstanden, dass Cookies verwendet werden. Zur Festlegung Ihrer eigenen Präferenzen und für weitere Informationen wählen Sie bitte die Einstellungen

Mit Hilfe von Cookies stellen wir die bestmögliche Benutzererfahrung für Sie sicher. Sie können entscheiden, welche Cookies wir setzen werden.
Folgende Optionen stehen zur Verfügung:

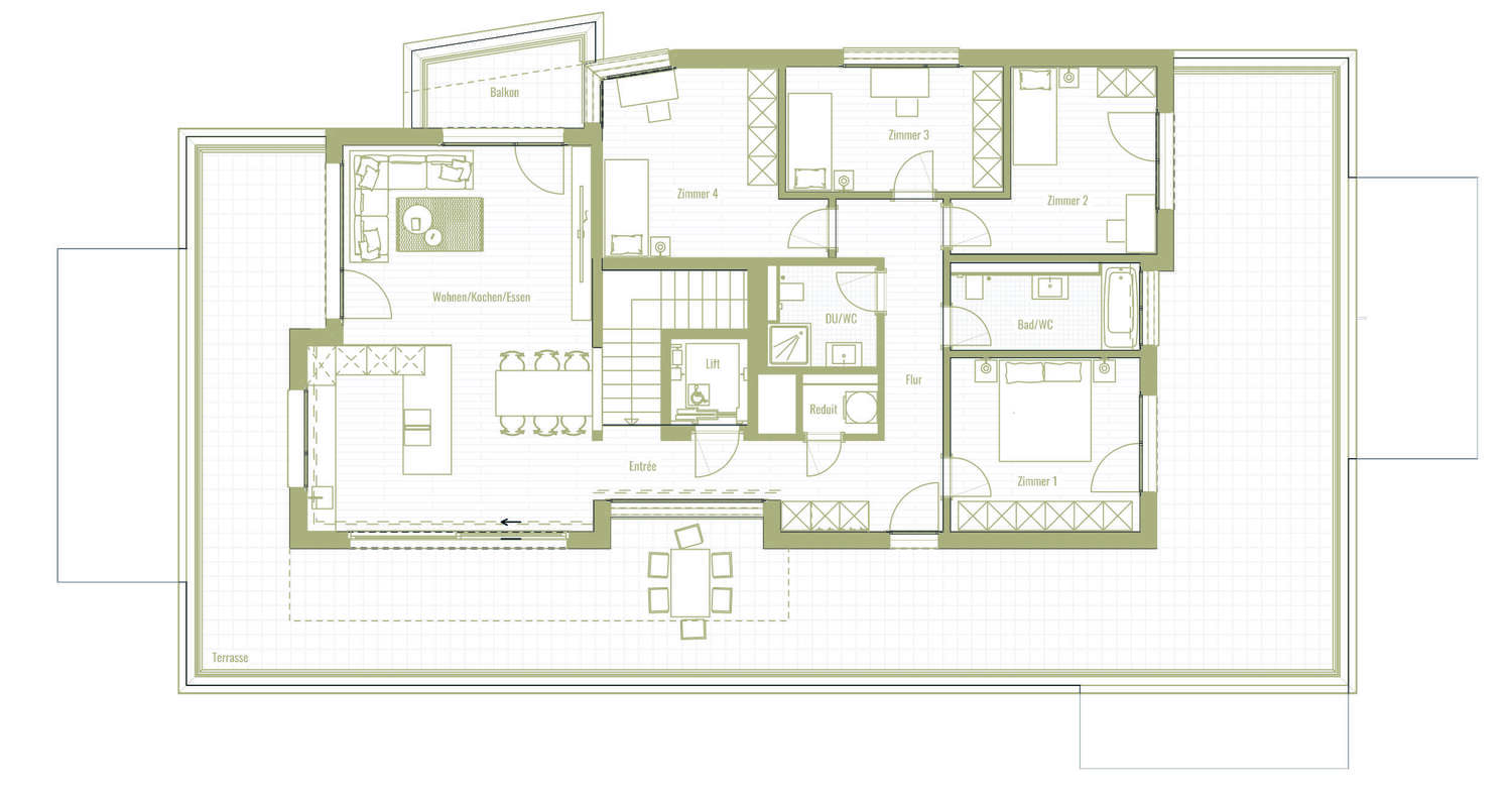
Mehrfamilienhaus «Bäjiweg»

Bäjiweg, 3900 Brig
Im Zentrum von Brig-Glis gelegen, bietet das «MFH Bäjiweg» viele Standortvorteile. Trotz ruhiger Lage, ist das Zentrum von Brig-Glis zu Fuss oder mittels ÖV (direkte Anbindung an den Ortsbus) schnell zu erreichen.

MFH "Bäjiweg" Attikawohnung

MFH Bäjiweg

Bäjiweg