Mit diesem Projekt entsteht ein einzigartiges Wohnensemble, das historische Eleganz und modernen Komfort perfekt vereint. Das Haupthaus „Zur Alten Post“ beeindruckt mit massiven Steinmauern und Fassaden aus sonnengebräuntem Lärchenholz, die dem Gebäude seinen unverwechselbaren Charakter verleihen. Bei der sorgfältigen Renovation wird viel Wert darauf gelegt, die historische Substanz zu bewahren.
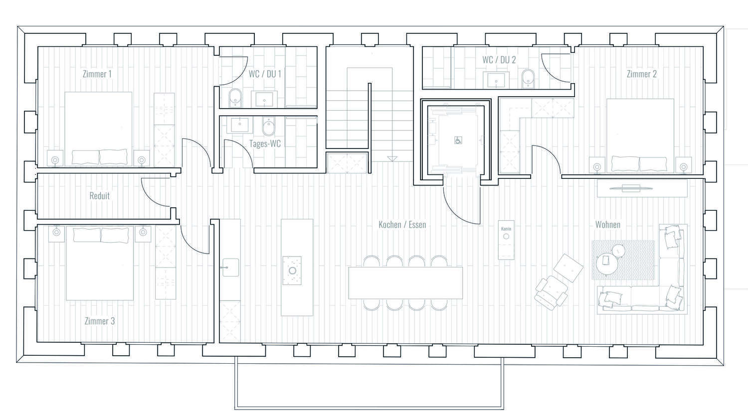
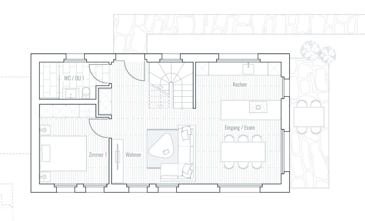
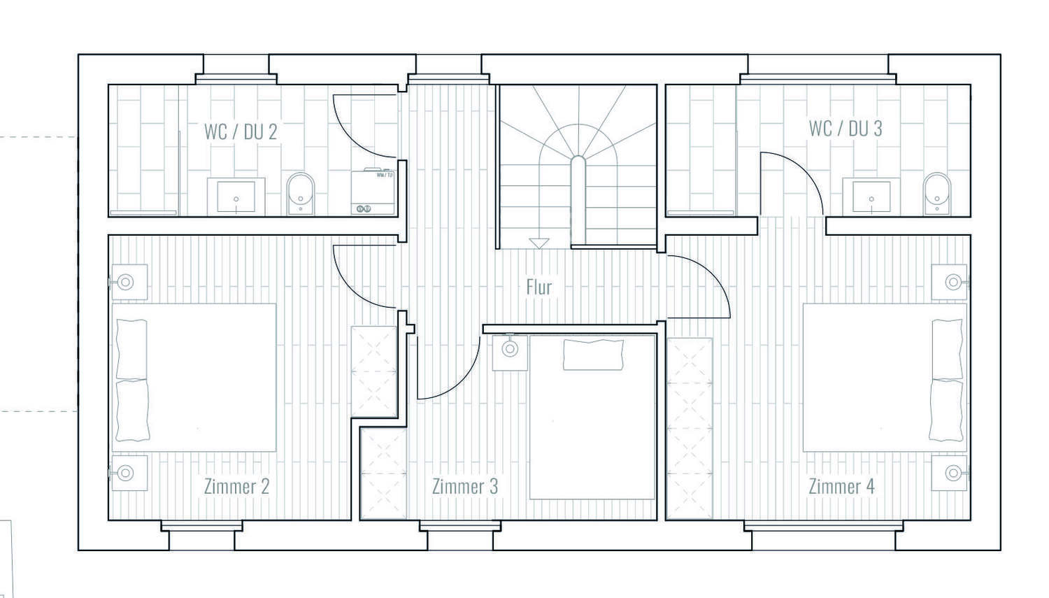
Jede Etage wird in exklusive Ferienwohnungen umgewandelt. Besonders hervorzuheben ist das Dachgeschoss: Die „Belle Étage“ bietet unter Anderem einen offenen Wohn- und Essbereich, eine moderne Küche sowie einen Kamin mit einem spektakulären Ausblick auf die Saaser Berg- und Gletscherwelt. Ergänzt wird das Ensemble durch den angrenzenden Anbau mit weiteren durchdachten Wohnungen, die das Gesamtkonzept abrunden.
Dieses Projekt die eine seltene Gelegenheit, alpinen Charme und historische Architektur in einem durchdachten Gesamtwerk zu erleben.


| Wohnung: |
| 1.1 |
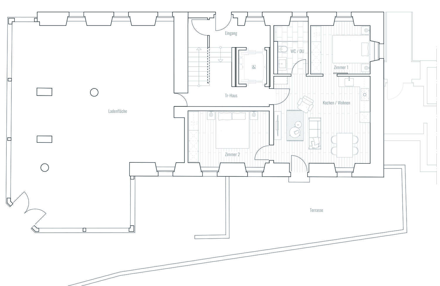
| Stockwerk: | EG |
| Zimmer: | 3.5 |
| BGF: | 79.55m² |
| Balkon: | 38.00m² |
| Verfügbarkeit: | Verfügbar |
| Preis: | CHF 1'000'000.- |

| Wohnung: |
| 1.2 |
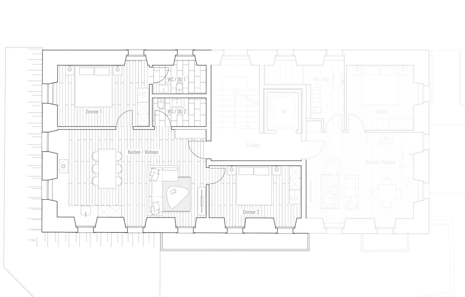
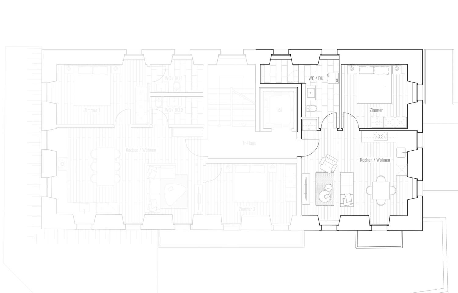
| Stockwerk: | 1. OG |
| Zimmer: | 3.5 |
| BGF: | 97.80m² |
| Balkon: | 6.50m² |
| Verfügbarkeit: | Verfügbar |
| Preis: | CHF 1'600'000.- |

| Wohnung: |
| 1.3 |
| Stockwerk: | EG |
| Zimmer: | 2.5 |
| BGF: | 64.75m² |
| Balkon: | 2.00m² |
| Verfügbarkeit: | Verfügbar |
| Preis: | CHF 1'100'000.- |

| Wohnung: |
| 1.4 |
| Stockwerk: | 2. OG |
| Zimmer: | 4.5 |
| BGF: | 165.90m² |
| Balkon: | 10.50m² |
| Verfügbarkeit: | Verfügbar |
| Preis: | CHF 2'800'000.- |

| Wohnung: |
| 1.5 |
| Stockwerk: | DG |
| Zimmer: | 4.5 |
| BGF: | 165.05m² |
| Balkon: | 6.50m² |
| Verfügbarkeit: | Verfügbar |
| Preis: | CHF 2'950'000.- |

| Wohnung: |
| 2.1 (1) |
| Stockwerk: | GG |
| Zimmer: | 5.5 |
| BGF: | 150.50m² |
| Balkon: | m² |
| Verfügbarkeit: | Verfügbar |
| Preis: | CHF 2'400'000.- |

| Wohnung: |
| 2.1 (2) |
| Stockwerk: | EG |
| Zimmer: | |
| BGF: | m² |
| Balkon: | m² |
| Verfügbarkeit: | Verfügbar |
| Preis: |

| Wohnung: |
| 2.2 (1) |
| Stockwerk: | 1. OG |
| Zimmer: | 4.5 |
| BGF: | 156.55m² |
| Balkon: | 11.00m² |
| Verfügbarkeit: | Verfügbar |
| Preis: | CHF 2'350'000.- |

| Wohnung: |
| 2.2 (2) |
| Stockwerk: | DG |
| Zimmer: | |
| BGF: | m² |
| Balkon: | m² |
| Verfügbarkeit: | Verfügbar |
| Preis: |